Telefon: +49(0)39262 878720

Email: gemashop@gema-net.de

WhatsApp: +49(0)17660429928

  • gyors szállítás

  • Ingyenes segítség és tanácsadás

  • Problémamentes visszaküldés

  • Nyitva a hét 7 napján

Anhaltinerring 17, 39439 Güsten

Nyitva H-Cs 7-17 óráig; Péntek 7-16 óra; Szo 9-12 óráig

IBC  |  Cikkszám: IBCGK725

IBC faelgázosító kazán GK-7k-öko 25 kW – Hatékony fűtés 🌱🔥 öntöttvas

Normál ár 95,686.00 kr
áFA tartalmazza. Szállítás a pénztárnál kerül felszámításra.


Szállítás és szállítás

A feldolgozási idő jellemzően 1 munkanap. Csomagok kézbesítése 1-3 munkanap. Áruszállítás esetén a kézbesítés 3-5 munkanapot vesz igénybe. Németországon kívül a szállítási idők eltérőek lehetnek.

Beschreibung

IBC faelgázosító kazán GK 7 eco – Hatékony és környezetbarát fűtés

Az IBC faelgázosító kazán, a GK-7k-öko ideális választás Öntöttvas kazánok Környezettudatos és költséghatékony fafűtés megoldás. A legmodernebb faelgázosítási technológiával ez a modell ötvözi az energiahatékonyságot, a tartósságot és a magas szintű környezetbarát jelleget. Tökéletes azoknak a háztartásoknak, amelyek csökkenteni szeretnék fűtési költségeiket, miközben hozzájárulnak az éghajlat védelméhez.

Hatékony faelgázosítási technológia

A kazán innovatív faelgázosítási technológiát alkalmaz, amely lehetővé teszi a tüzelőanyag különösen hatékony felhasználását. A fát először egy speciális égéskamrában elgázosítják, mielőtt a keletkező gázok egy második folyamatban teljesen elégnének. Ez a kétlépcsős égés nemcsak magasabb energiahozamot biztosít, hanem minimalizálja a kibocsátásokat is.

Magas hatásfokának köszönhetően alacsony fafogyasztás mellett is állandó és megbízható hőteljesítményt érhet el. Az IBC Öntöttvas kazánok A GK-7k-öko ezért egy energiahatékony és fenntartható fűtési megoldás.

Környezetbarát és alacsony kibocsátású

Az IBC faelgázosító kazán egyik fő előnye az alacsony károsanyag-kibocsátás. A hatékony égéstechnológia minimalizálja a koromrészecskék és egyéb kipufogógázok kibocsátását. Ez azt jelenti, hogy a kazán megfelel a legszigorúbb környezetvédelmi előírásoknak, és ideális a környezettudatos felhasználók számára.

Továbbá a fa egy megújuló erőforrás, amely CO₂-semlegesen ég. Ez teszi az IBC GK-7k-öko faelgázosító kazánt fenntartható alternatívává a fosszilis tüzelőanyagokkal, például az olajjal vagy a gázzal szemben. Rendkívül hosszú élettartam az öntöttvas konstrukciónak köszönhetően

Kompakt kialakítás és egyszerű telepítés

Kompakt kialakításának köszönhetően a GK-7k-öko helytakarékos és könnyen telepíthető. A kazán könnyen illeszkedik bármilyen fűtési rendszerbe, és zökkenőmentesen integrálható a meglévő rendszerekbe. Felépítése biztosítja, hogy még a kisebb kazánházak is optimálisan kihasználhatók legyenek.

Továbbá a telepítés minimális erőfeszítést igényel, így még a kevésbé technikailag jártas felhasználók is zökkenőmentes telepítést élvezhetnek. A felhasználóbarát felület leegyszerűsíti az eszköz vezérlését és felügyeletét.

Nagy tartósság és robusztus anyagok

A Öntöttvas kazánok Az IBC GK-7k-öko faelgázosító kazán kiváló minőségű, tartós anyagokból készült, amelyek hosszú élettartamot biztosítanak. A hő- és korrózióálló alkatrészek megbízható működést biztosítanak intenzív használat mellett is, éveken át.

A kifinomult kialakítás és a robusztus konstrukció hosszú távú, jövedelmező befektetéssé teszi a kazánt. Tartósságának köszönhetően a karbantartási költségek kezelhetőek maradnak, és a felhasználók állandóan magas teljesítményre számíthatnak.

Könnyű tisztítás és karbantartás

Az IBC faelgázosító kazán további előnye a könnyű tisztíthatóság és karbantartás. A kazánt úgy tervezték, hogy a maradványok és a hamu gyorsan és könnyedén eltávolíthatók legyenek. A rendszeres karbantartási intervallumok egyszerűek, így időt és energiát takarítanak meg.

Optimalizált kialakításának köszönhetően a kazán hatásfoka hosszú távon is állandóan magas marad, miközben az üzemeltetési költségek alacsonyak maradnak. Ezáltal az IBC faelgázosító kazán különösen felhasználóbarát és alkalmas a mindennapi használatra.

Következtetés: Gazdaságos és fenntartható fűtési megoldás

Az IBC Öntöttvas kazánok A GK-7k-öko energiahatékonyságával, környezetbarát jellegével és tartósságával lenyűgöző.Innovatív faelgázosítási technológiája optimális hőteljesítményt biztosít minimális üzemanyag-fogyasztás és alacsony károsanyag-kibocsátás mellett. Kompakt kialakítása és könnyű kezelhetősége ideális választássá teszi minden olyan háztartás számára, amely nagyra értékeli a fenntarthatóságot és a költséghatékonyságot.

Az IBC GK-7k-öko faelgázosító kazánnal egy jövőbiztos fűtési megoldást választ, amely tartós hőt és alacsony üzemeltetési költségeket garantál.

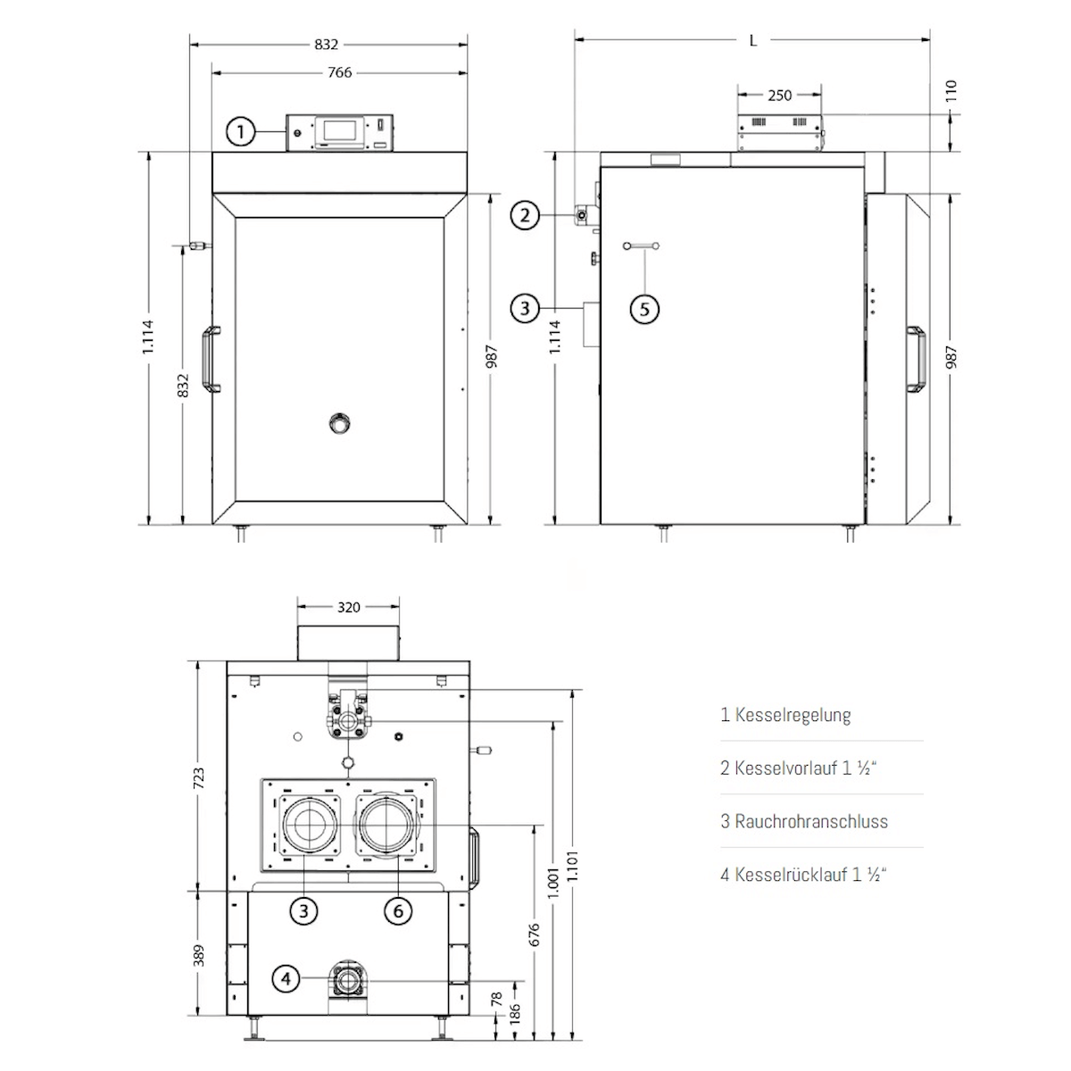
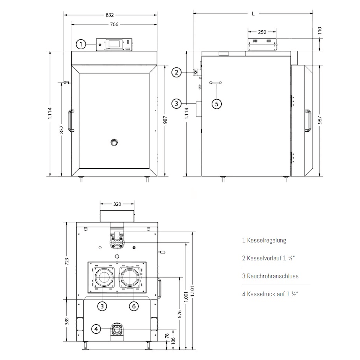
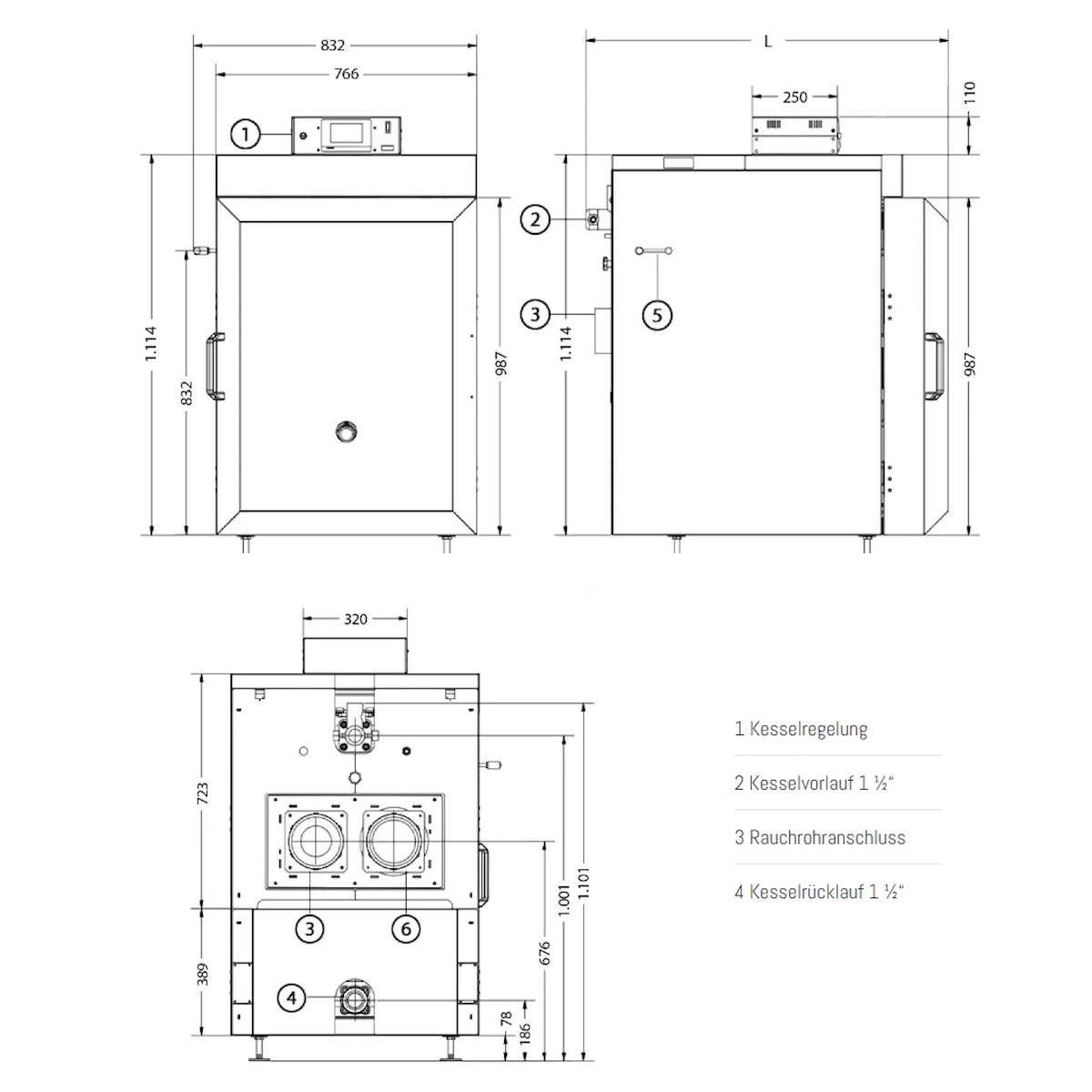
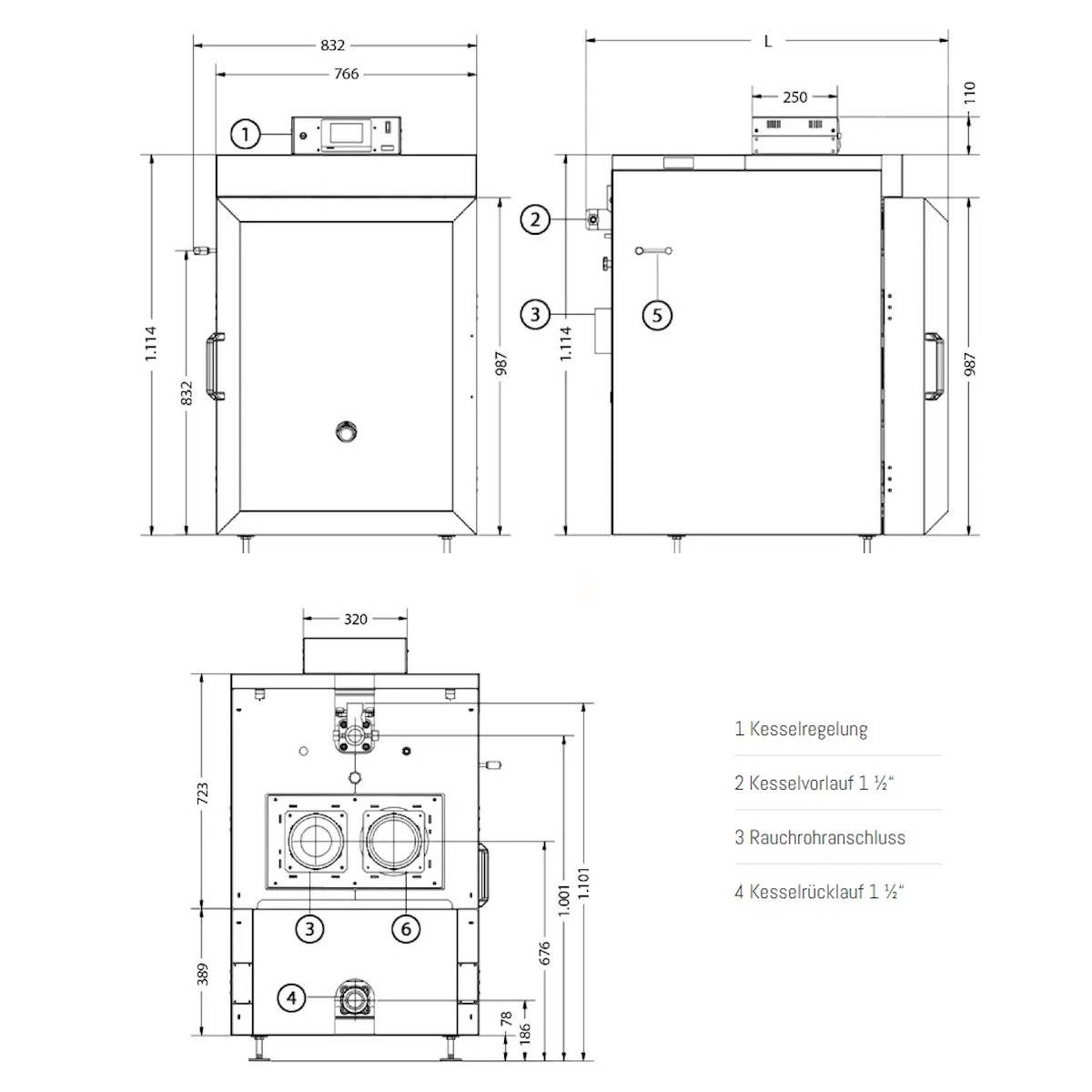
Műszaki adatok

  • Névleges hőteljesítmény 24,5 kW
  • Láncszemek száma 5
  • Töltőkamra térfogata 100 liter
  • Hatékonyság 91,35%
  • Súly 600 kg
  • Kazán méretei burkolattal (Ma x Szé x Mé) 1224 x 832 x 1065 mm
  • Öntöttvas testű kazán méretei (Ma x Szé x Mé) 980 x 650 x 980 mm
  • Égéstér ajtónyílás (Sz x M) 476 x 254 mm
  • Égéstér mélysége 410 mm
  • Kazáncsatlakozás elő- & Visszatérés 1 1/2"
  • 160 mm-es füstcső-csatlakozás
  • Megengedett üzemi nyomás 3 bar
  • Max. üzemi hőmérséklet 100 °C
  • minimális visszatérő hőmérséklet &>55 °C
  • Kipufogógáz hőmérséklete 160 - 180 °C
  • Kipufogógáz tömegárama 15,73 g/s
  • Szükséges szállítónyomás 10 Pa

Szállítási terjedelem

  • IBC GK-7k-eco öntöttvas kazán 25 kW
  • Integrált internetmodul ingyenes alkalmazáshasználattal
  • Közgyűlés &Használati utasítás

fizetés & Biztonság

Fizetési lehetőségek

  • American Express
  • Apple Pay
  • Bancontact
  • BLIK
  • EPS
  • Google Pay
  • iDEAL
  • Klarna
  • Maestro
  • Mastercard
  • MobilePay
  • PayPal
  • Przelewy24
  • Shop Pay
  • Union Pay
  • Visa

Fizetési adatait biztonságosan dolgozzuk fel. Nem tároljuk és nem férünk hozzá a hitelkártya adataihoz.

Vegye fel velünk a kapcsolatot

5
reviews
See all reviews